L'Aubépin (69) - 1995

Histoire d’une conquête. Le temps, les évennements, dans le tâtonnement de l’appropriation de l’espace.

extrait de Marelle (1995)

L’espace est avec le temps l’élément indispensable à la construction des groupes et des individus. Faut-il encore que des évennements, des stimuli, provoquent son besoin, sa structuration, son appropriation. Jean-Michel CALVI conte la propre conquête de sa classe .... qui a duré 15 ans ...

 

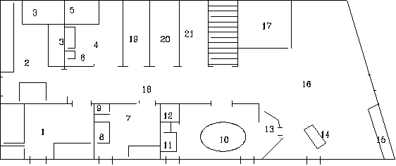
1er étage

1 : atelier peinture. - 2 : bibliothèque, documentation. - 3 : lits. - 4 : salle de bains (sorte d'atelier secrets). - 5 : baignoire. - 6 : lavabo. - 7 : atelier son. - 8 : table instruments de musique. - 9 : magnétophone. - 10 : table des petits. - 11 : évier. - 12 : imprimerie légos. - 13 : château-fort. - 14 : castelet. - 15 : jeux. - 16 : salle petits (poufs, blocs mousse, briques, tapis) + visionnement diapos + chant/musique. - 17 : piscine à balles. - 18 : couloir. - 19 : toilettes. - 20 : placard. - 21 : débarras déguisements (costumes, tissus...)

Un grabataire cloué sur un lit toute une vie ressent-il le besoin d'un espace plus grand ? Des milliers d'élèves et d'enseignants cloués sur une chaise à longueur d'années scolaires ressentent-ils le besoin d'un espace plus grand ? Pas sûr, n'est-ce-pas ? Comment en vient-on à se dire que ce n'est plus possible, que le carcan dans lequel on évolue est trop exigu, ne nous convient plus ?

Nous avions besoin d'espace, mais... nous ne le ressentions pas encore....

 

Il était une fois, dans une grande forêt lointaine, une toute petite maison qu'on appelait l'école. Elle était occupée par...

Non, décidément, ce serait trop facile. Encore une histoire pour s'endormir heureux, pour faire croire aux mondes parallèles, si merveilleux quand un* beau parleur les décrit alors qu'il ne les a jamais habités. Laissons cela aux âmes bien nés qui nous notent, nous gouvernent, nous enseignent...

Il y a 16 ans, lorsque je participais au mouvement des instituteurs, je mettais sur ma liste de voeux uniquement des écoles à classe unique, alors que j'avais une vague idée de ce que ça pouvait être, mais peut-être avec le pressentiment que ces lieux devaient constituer les quelques rares espaces de liberté et d'aventure accessibles dans l'Education Nationale. C'est ainsi que j'ai atterri à l'Aubépin.

14 élèves à l'époque. Une seule salle de classe de 38 m2. Des bureaux vieux de plus de 50 ans, des tableaux, quelques livres... et c'est tout. Et c'était bien. Nous étions des grabataires, avec un bel emploi du temps affiché, des progressions tournées vers l'avenir, des préparations préparées, des gamins sympas, assis sagement sur leurs bancs. Je ne ressentais, ils ne ressentaient aucun besoin d'espace supplémentaire. A quoi bon ? Pour quoi faire ? L'espace, nous l'avions dehors, quand nous explorions les bois, quand nous jouions dans les prés. Mais...

Mais il se trouve que j'avais lu un certain Célestin Freinet, que j'avais même fait quelques stages organisés par le "groupe Freinet" du Rhône. Et si nous faisions un journal, pour raconter nos histoires, qu'on vendrait dans le village ? Premiers numéros écrits à la main et polycopiés à l'alcool... Pas terrible... Puis tapés à la machine à écrire (Quelle galère pour corriger les nombreuses fautes de frappe). Mais quel plaisir quand même de pouvoir se raconter, et puis on se parle plus, on mène un projet ensemble. Et nos quatre murs continuent à nous suffire.

Première fête, premier argent gagné par la coopérative. On achète une imprimerie d'occasion pour faire vraiment un vrai journal imprimé. On se pousse un peu pour installer les casses, la presse... Oui mais...

Mais on ne peut pas faire tous en même temps. Mais où on fait sécher les feuilles ? Mais ils nous gênent parce qu'ils parlent ceux qui sont à la presse, et ils mettent de l'encre de partout. On arrête tout, alors ? Ah non, vous avez vu ces belles feuilles que j'ai faites avec mon texte, et j'ai même fait une chouette décoration en découpant un chien dans de la chambre à air et en l'imprimant avec la presse !

ON A BESOIN DE PLUS D'ESPACE, c'est tout.

Une salle crasseuse, pleine de choses à jeter.

Tous nos regards et nos pas se sont tournés vers une salle désaffectée, en face de la classe, sans lumière, sans chauffage, crasseuse et pleine de choses à jeter. On était tellement bien dans notre cage qu'on ne la remarquait plus depuis longtemps. On jette, on balaie, on ouvre les volets. Le voilà, notre atelier d'imprimeur, un imprimeur qui se gèle, oui, mais un imprimeur libre de ses gestes et paroles. L’horizon a changé. Les grabataires ont quitté leur lit pour faire quelques pas. Leur horizon a changé. La correspondance avec une autre école a commencé.

L'emploi du temps a jauni à certains endroits : avec tous ces trucs à écrire ou imprimer, on n'a plus le temps de faire autant d'exercices bien assis sur nos bancs. Ce serait bien d'avoir un coin pour lire des livres tranquille. On se pousse à nouveau dans la classe, quelques planches d'agglo, des étagères, des coussins... un nouvel espace est né, et on n’est pas mal dans notre petit cocon, même à 22 élèves. Mais...

Mais trois révolutions viennent à nouveau chambouler tout ça :

on a la permission d'accueillir les petits dès 3 ans, on crée une cantine, on se lance dans l'aventure du ski (1).

Avec l'aide des parents et de la mairie, la salle "imprimerie" reçoit néons, chauffage, peinture, lino, évier, cuisinière, frigo, tables... Des W.C. intérieurs rognent un bout des vestiaires. On achète 15 équipements de ski, 20, 50...(on en est maintenant à 100 paires de chaussures, 60 paires de ski). On achète une vieille grosse photocopieuse. Le plan "informatique pour tous" nous amène son barda.

Les petits, ça remue, ça fait du bruit... On leur achète des petites tables et petites chaises... La crise du logement, on a connu !

on est pris dans un piège ..

Alors on reste un peu plus assis, on redevient un peu grabataires. On supprime l'imprimerie remplacée par l'ordinateur et la photocopieuse. On est bien, mais il y a comme un désenchantement, ressentit surtout par moi, il me semble. On est pris un peu comme dans un piège dont on ne peut sortir.

Et puis vient... le Minitel.

On se fait ouvrir une boîte sur ACTI. On y entre sur la pointe des pieds. Mais y'a d'la vie, là, et si on ouvre un peu trop l'écran, ça va nous faire éclater les murs !

Et ça nous a fait éclater les murs !!!

Multiplication des corres. nationaux et internationaux, réseaux d'échange de journaux français et étrangers, rencontres, discussions, recherches, pistes. L'emploi du temps s'efface peu à peu, parce qu'il y a trop d'urgences, trop d'imprévus qui nous arrivent, trop d'envies.

je craque !

Mais 15 ou 20 grabataires qui veulent se lever, agir, vivre, ça fait du bruit, ça brasse. Il faut un coin pour que je bricole ce bateau, il faut un coin pour faire ce circuit électrique, un coin pour enregistrer cette cassette ou écouter celle qu'on vient de recevoir, chut, taisez-vous, on enregistre, arrête de taper avec ce marteau, toi, n'entrez pas, on prépare une pièce, attention, tu vas casser mon moulin en légos techniques, où je me mets pour faire ma peinture, la cuisinière a besoin des tables... Allez, tout le monde en récréation, je craque !!!

On ne peut plus continuer comme ça. Qu'est-ce qu'on fait ? On arrête tout ? Ah non !

ON A BESOIN DE PLUS D'ESPACE, c'est tout.

Oui, mais on ne peut pas l'inventer, l'espace. On a beau mettre les skis au plafond, mettre les portemanteaux dans l'entrée, mettre l'atelier son entre le lavabo et les W.C., changer les bureaux de place... les murs sont là. Il faut qu'on se limite, qu'on redeviennent un peu grabataires, pas autant qu'avant, mais un peu...

Il y aurait bien, oui, il y aurait bien... là-haut, cet appartement de fonction, occupé par une institutrice de l'école du village voisin (mais faisant partie de la même commune). Si elle pouvait partir (ruminais-je dans ma tête coupable d'espérer ce départ...).

elle va partir !

Et un jour, miracle ! j'apprends qu'elle va partir ! Demande officielle à Monsieur le maire, avec explications, re-explications, re-re-explications. Tu vas voir qu'il va refuser, il va en profiter pour régler ses comptes (il se trouve qu'on en a quelques-uns ensemble...). Second miracle : accepté.

Les murs ont explosé. Les grabataires ont pris des ailes.

En dehors de tout ce que nous a apporté cet espace conquis en possibilités de multiplier les activités possibles sans gêner les autres, en liberté, en autonomie, en non-violence, en organisation nouvelle, en possibilités de communications les plus diverses, il y eut ce formidable tâtonnement qui dura plusieurs années et qui continue un peu encore pour s'approprier cet espace, l'aménager selon notre évolution, nos besoins qui changeaient, nos échanges de plus en plus complexes. Ce tâtonnement, c'était un peu ce nouvel ordre cherché après la mise en "désordre" de notre espace, de notre façon de fonctionner, de notre vie. Pas toujours facile à vivre, d'ailleurs.

Qu'est-ce qui a permis aux grabataires que nous étions de ressentir que, finalement, c'était l'espace qui nous manquait ? Chaque fois ce fut l'ouverture sur l'extérieur, la vie qu'on laissait pénétrer dans la classe, les communications qu'on laissait s'épanouir. A l'inverse, chaque fois qu'on était allé au bout de notre espace, il y avait régression. On bloquait à nouveau la vie, les grabataires se trouvaient à nouveau bien dans leur lit.

L'école, en règle générale, est une structure morte (absence de communications, enseignement frontal...). Il est normal que ce besoin d'espace ne s'y fasse pas sentir, ne dvienne pas une revendication primordiale. Souvent même, personne ne se rend compte que, dans ces grands groupes scolaires, de l'espace à conquérir, il y en a.

Si on osait.

Il y a des kilomètres de couloirs vides, d'escaliers vides, de préaux vides. Pour ne serait-ce que les voir, il suffit souvent d'ouvrir une fenêtre, se parler, brancher un écran, laisser échapper quelques miettes salissantes de vie de sa serviette bien propre, bien pliée par l'amidon d'une sécurisante mort quotidienne. Avant de gémir, de se plaindre, de manifester. Dans un cercueil, on peut quand même bouger les doigts de pieds, c'est pas si mal, et même souvent se gratter là où ça démange, le luxe!

on a installé l’atelier bois, l’espace math, les sculptures .....

Depuis qu'on a aménagé un vrai espace pour les petits avec piscine à balles, blocs de mousses, briques, château..., qu'on voulait un espace maths, que les sculpteurs de la pierre ramenée de La Puye mettaient de la poussière de partout, on a installé l'atelier bois et sculpture sous le préau, entre la cabane et les placards.

On louche maintenant sur un bout de pré que la commune pourrait nous acheter... et sur le grenier qui pourrait devenir une vraie petite salle de spectacle...

La gangrène, si on ne la soigne pas dans des hôpitaux psychiatriques, s'étend inexorablement.

Jean-Michel Calvi

 

(1) L’école de l’Aubépin, petit village des Monts du Lyonnais, est parfois enneigé. Personne n’y avait eu l’idée d’y faire du ski ... sauf Jean-Michel et ses galopins qui eurent l’idée d’ouvrir des pistes de fond, d’acheter des skis ... et de les louer aux gens du village !